We use cookies on this site to enhance your experience.
By selecting “Accept” and continuing to use this website, you consent to the use of cookies.
Search for academic programs, residence, tours and events and more.
Dec. 21, 2021
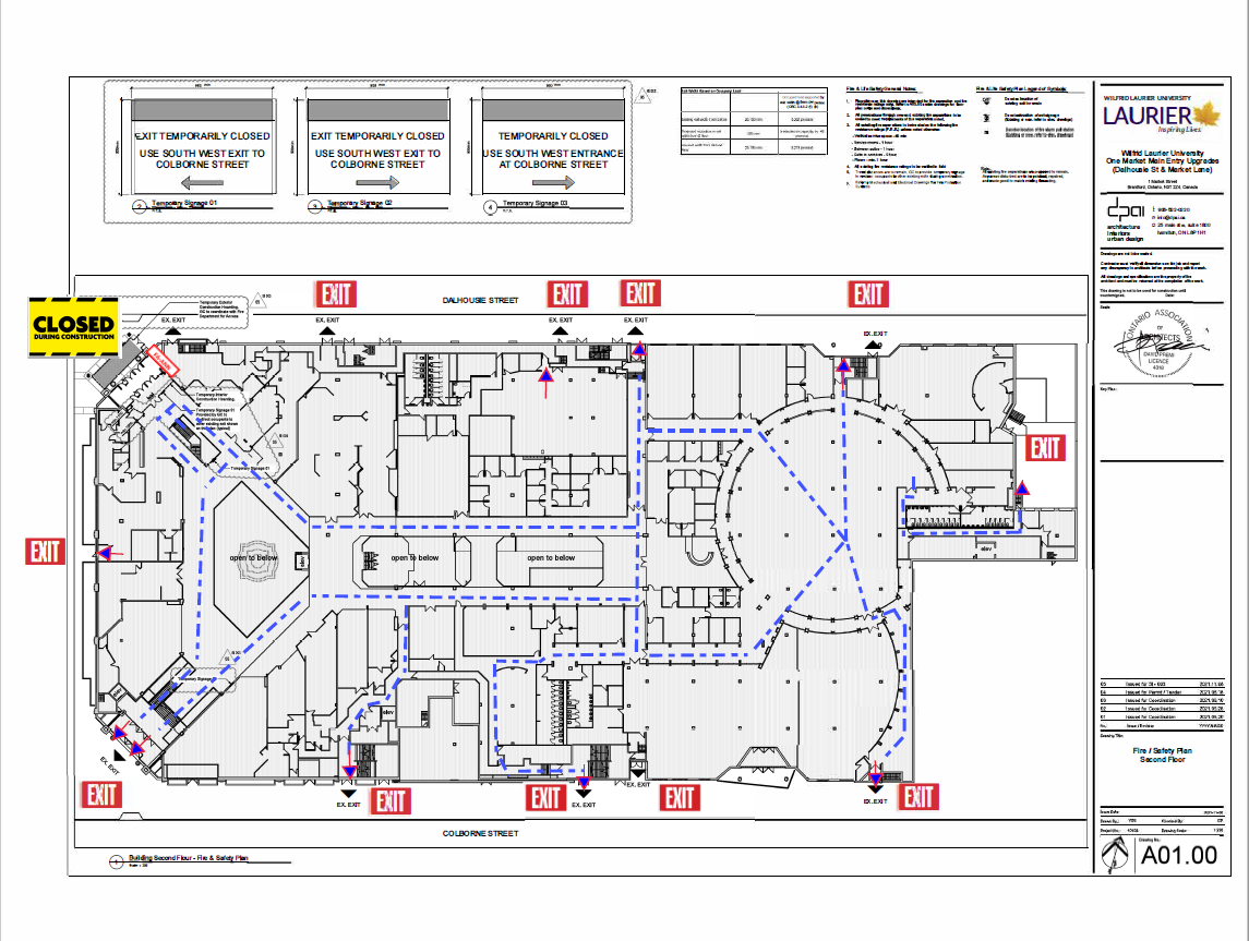
Print | PDFBeginning January 4, 2022, there will be some construction within specific areas at One Market.
The Dalhousie St. entrance will be closed for construction for approximately 2 months.
• The Colborne St. entrance will be open for regular building hours
• The George St. entrance will be available for controlled One Card access
An EXIT map is attached below.
For accessibility accommodation, there is an elevator at the Colborne St. entrance that will go down to the first floor where the second elevator can be accessed to travel to the second and third floors. Directional signage will be in place.
Additionally One Market lower level atrium will also be undergoing some construction for approximately 3 months. Please adhere to all signage and barriers during this time.
We apologize for any inconvenience this may cause.
