We use cookies on this site to enhance your experience.
By selecting “Accept” and continuing to use this website, you consent to the use of cookies.
Search for academic programs, residence, tours and events and more.
Aug. 4, 2022
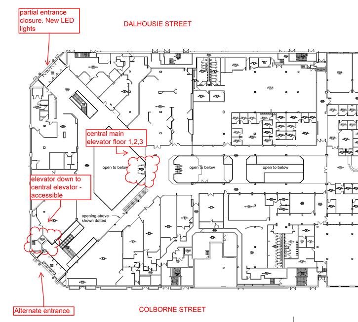
Print | PDFPlease note that beginning on Monday, August 8, 2022 to Friday, August 12, 2022 our Electrical contractor, Best Trade, will be installing new LED light fixtures on the exterior of the One Market Dalhousie Street entrance doors (North-West building corner). Please note a lift will be used to perform this work. The contractor will isolate themselves and allow partial access to the North-West entrance doors and reopen and close the door access as they progress. The intent is to maintain the accessible entrance until the final day when this entrance may be closed.
A designated alternate accessible entrance of Colborne Street (South-West corner of the building) has been marked below. We ask that you please follow and respect all signage and barriers that will be in place for this work.
The image below summarizes the impacted areas. The One Market Dalhousie Street Entrance on the North-West corner of the building will have limited access. The One Market Colborne Street entrance on the South-West corner of the building will have open access for the week in accordance with our posted building hours.
