We use cookies on this site to enhance your experience.
By selecting “Accept” and continuing to use this website, you consent to the use of cookies.
Search for academic programs, residence, tours and events and more.
Oct. 7, 2022
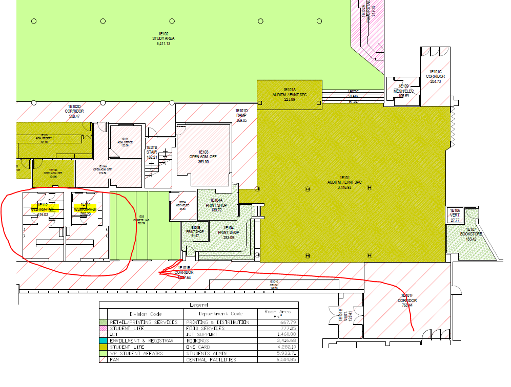
Print | PDFPlease note that on Wednesday, October 12, 2022 at 6:00 am the water will be shutdown to the Dr. Alvin Woods Building (DAWB) to allow for a repair to the main sanitary piping. This will be for approximately for 8 hours (until 2:00 pm) while the repair is completed. This will affect all washrooms on all floors of the Dr. Alvin Woods building only. Alternate washrooms are available in the Concourse.
We ask that you please follow and respect all signage and barriers that will be in place for this work.
For further information please contact Dave Siegers at dsiegers@wlu.ca or 519.465.6971.
Please see the map below for alternate washroom locations.
