We use cookies on this site to enhance your experience.
By selecting “Accept” and continuing to use this website, you consent to the use of cookies.
Search for academic programs, residence, tours and events and more.
May 12, 2023
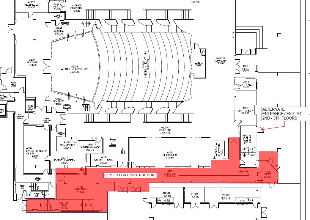
Print | PDFPlease note that beginning on Monday, May 15, 2023 until approximately August 31, 2023 the first floor main hallway of the John Aird Building (South side) will be closed to accommodate the work required for the Faculty of Music Building project.
During this period, the Aird Building main entrance doors (West underpass entrance off Mid Campus Drive) will be closed. As a result, please utilize the alternate building entrance located adjacent to the main entrance.
Due to the closure of the main hallway, the access to the elevator from the first floor of the Aird Building will not be permitted. Access from the first floor to the second floor will only be available via the stairwells. The elevator will be operational for floors 2 through 5.
Faculty of Music, with the support of Facilities and Asset Management (FAM), will work with individuals requiring accessibility accommodations during this time period. Individuals requiring accommodation are to contact the Faculty of Music in advance to make appropriate arrangements.
We ask that you please follow and respect all signage and barriers that will be in place for this work.
For further information please contact Brett Miller at bmiller@wlu.ca or 226.791.7738.
The map below summarizes the above information regarding impacted closure and the alternate entrance location that is required to accommodate the work associated with the Faculty of Music Building project.
